Todo edificio de uso público, independientemente de su carga de ocupación, que preste un servicio a la comunidad, así como las edificaciones colectivas, deben ser accesibles y utilizables de forma autónoma y sin dificultad por personas con discapacidad, especialmente aquellas con movilidad reducida. Este principio se fundamenta en la Ley 20.422.
Requisitos para Ascensores
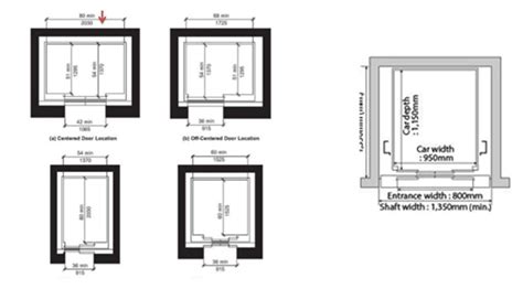
Los ascensores requeridos por un proyecto o incorporados a él deben estar conectados a la ruta accesible. Las cabinas de estos ascensores deberán cumplir con las medidas mínimas establecidas en el artículo 4.1.11 de la Ordenanza General de Urbanización y Construcción (OGUC).
Dimensiones Mínimas de las Cabinas de Ascensor
- Profundidad: 1,40 m.
- Ancho: 1,10 m.
Ubicación y Características de la Botonera
La botonera debe situarse a una altura comprendida entre 90 y 120 cm y a una distancia mínima de 40 cm del vértice interior de la cabina. Los botones deberán tener un diámetro no inferior a 2 cm.
Consideraciones Adicionales para Cabinas
En caso de elevadores donde una silla de ruedas no pueda girar completamente, es obligatorio instalar un espejo. Este espejo debe ser inastillable y se colocará a partir de 30 cm del piso de la cabina.

Plataformas Elevadoras
Las plataformas elevadoras verticales o inclinadas se consideran equipos destinados a salvar desniveles únicamente en la ruta accesible de edificios existentes. Las plataformas verticales pueden salvar desniveles de hasta un máximo de 1,5 m, mientras que las plataformas inclinadas están diseñadas para salvar desniveles de, como máximo, un piso.
Los equipos salvaescaleras, por su parte, se limitan a salvar desniveles de un máximo de un piso, siendo aplicables principalmente en el interior de viviendas unifamiliares o unidades destinadas a vivienda en edificios colectivos.

Rutas Accesibles en Veredas
La accesibilidad universal se define en la OGUC, específicamente en su Artículo 1.1.2 y el punto 1 del Artículo 2.2.8. Según este último, en todas las veredas se deberá contemplar una ruta accesible. Esta ruta debe ser identificada y graficada en los planos del proyecto.
Características de la Ruta Accesible
La ruta accesible se concibe como una envolvente teórica de desplazamiento continuo, libre de obstáculos y barreras. Su ancho mínimo debe ser de 1,20 m para vías locales, o equivalente al ancho de la vereda según la categoría de la vía en la que se encuentre, de acuerdo con la tabla del Artículo 3.2.5 de la OGUC.

tags: #vestidor #accesibilidad #universal