La accesibilidad universal y el diseño para todos son principios fundamentales en la legislación moderna, buscando garantizar la igualdad de oportunidades y la plena inclusión de las personas con discapacidad en todos los ámbitos de la vida. En España, esta meta se ha abordado a través de un marco normativo progresivo, que incluye leyes, decretos y órdenes ministeriales destinadas a eliminar barreras arquitectónicas y promover la autonomía de las personas con movilidad reducida.
Marco Legal y Principios Rectores
La Convención Internacional sobre los derechos de las personas con discapacidad, aprobada por la Asamblea General de las Naciones Unidas en 2006 y ratificada por España en 2007, sentó las bases para el desarrollo de políticas de accesibilidad a nivel global. Este tratado internacional establece la necesidad de que los Estados promuevan la accesibilidad universal y el diseño para todos, reconociendo el derecho de las personas con discapacidad a acceder y utilizar plenamente el entorno físico y los servicios.
En cumplimiento de estos principios, la legislación española ha avanzado significativamente. La Ley 20.422, aunque no se especifica su origen geográfico en el texto proporcionado, se menciona como un hito que establece principios rectores como la vida independiente, la accesibilidad y el diseño universal. Esta ley aborda la eliminación de barreras arquitectónicas y la promoción de la accesibilidad en diversos ámbitos, incluyendo:
- Edificios y espacios de uso público.
- Programas habitacionales.
- Medios de transporte público.
- Diseño de estacionamientos.
- Rotulación de productos y puestos comerciales.
En España, el desarrollo normativo ha sido un proceso continuo. El Real Decreto 505/2007, de 20 de abril, sentó las bases para las condiciones básicas de accesibilidad y no discriminación de las personas con discapacidad en el acceso y utilización de los espacios públicos urbanizados y edificaciones. Posteriormente, la Orden VIV/561/2010, de 1 de febrero, desarrolló este documento técnico, estableciendo criterios básicos de accesibilidad universal aplicables en todo el territorio nacional. Esta orden fue la primera norma estatal de su tipo, buscando ofrecer un mínimo común denominador de accesibilidad para todos los usuarios de los espacios colectivos.

Actualización y Adaptación de la Normativa
Una década después de la entrada en vigor de la Orden VIV/561/2010, se identificó la necesidad de actualizarla para adaptarla a los cambios normativos y a los avances técnicos. Factores como la aprobación del Texto Refundido de la Ley General de derechos de las personas con discapacidad y de su inclusión social (Real Decreto Legislativo 1/2013) y del Texto Refundido de la Ley de Suelo y Rehabilitación Urbana (Real Decreto Legislativo 7/2015) impulsaron esta revisión. Además, se consideró la obsolescencia de los plazos transitorios, la necesidad de mejorar la comprensión de ciertos preceptos, corregir errores y armonizar la normativa con el Documento Básico SUA (Seguridad de utilización y accesibilidad) del Código Técnico de la Edificación.
Como resultado de este proceso, se aprobó una nueva Orden Ministerial que derogó la anterior. Esta nueva normativa se compone de un artículo único, disposiciones transitorias y derogatorias, y un anexo que desarrolla el documento técnico de condiciones básicas de accesibilidad y no discriminación para el acceso y utilización de los espacios públicos urbanizados.
Condiciones Básicas de Accesibilidad en Espacios Públicos Urbanizados
El documento técnico aprobado por la nueva Orden Ministerial es de aplicación a la proyección, construcción y renovación de los espacios públicos urbanizados y sus elementos, tanto permanentes como temporales. Se busca fomentar la aplicación avanzada de las tecnologías de la información y las telecomunicaciones en beneficio de todas las personas.
Itinerarios Peatonales Accesibles
Los itinerarios peatonales accesibles se definen como aquellos que garantizan el uso y la circulación de forma segura, cómoda, autónoma y continua para todas las personas. Estos itinerarios deben cumplir con las siguientes condiciones:
- Discurrir colindantes a la línea de fachada o referencia edificada a nivel del suelo.
- En zonas de plataforma única, donde el itinerario peatonal y la calzada estén al mismo nivel, el diseño debe ajustarse al uso previsto e incorporar señalización e información para garantizar la seguridad.
El pavimento de estos itinerarios debe ser duro, estable y cumplir con los requisitos de resbaladicidad establecidos en el Código Técnico de la Edificación. No debe presentar piezas sueltas ni elementos que puedan moverse.
Las rejillas y tapas de instalación deben colocarse enrasadas con el pavimento, con aberturas que no superen los 1,6 cm de diámetro. En el caso de rejillas, el lado mayor de sus huecos debe orientarse transversalmente al sentido de la marcha. Los alcorques deben protegerse preferentemente con rejillas, material compacto drenante o elementos similares enrasados con el pavimento.
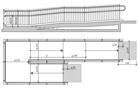
Rampas y Escaleras
Las rampas son un elemento clave para salvar desniveles. Deben tener una anchura mínima libre de paso de 1,80 m. Los rellanos entre tramos de rampa sin cambio de dirección deben tener la misma anchura y una profundidad mínima de 1,50 m. Se instalarán pasamanos a ambos lados, y en caso de desniveles laterales, se añadirán barandillas de protección y zócalos. Al inicio y final de la rampa debe existir un espacio libre de obstáculos de la misma anchura y una profundidad mínima de 1,50 m.
Las escaleras, aunque no forman parte de los itinerarios peatonales accesibles, son elementos complementarios. Sus tramos deben ser de directriz recta, con un mínimo de 3 y un máximo de 12 escalones. La huella debe medir como mínimo 28 cm y la contrahuella entre 13 cm y 17,5 cm, manteniendo dimensiones uniformes en cada tramo. Los rellanos intermedios deben tener la misma anchura que la escalera y una profundidad mínima de 1,20 m. Se colocarán pasamanos a ambos lados y, si es necesario, barandillas de protección.

Otros Elementos Urbanos
La normativa también contempla la accesibilidad en:
- Puertas: Deben dejar un ancho de paso libre mínimo de 90 cm y contar con un sensor de cierre en toda su altura.
- Ascensores: Los símbolos de las botoneras deben contrastar cromáticamente con el fondo y contar con indicación en alto relieve y braille. La cabina debe disponer de un sistema de alarma accesible.
- Andenes móviles y escaleras mecánicas: Se consideran elementos complementarios. Los pasamanos móviles deben contrastar cromáticamente con el entorno y proyectarse horizontalmente al menos 80 cm antes y después de las superficies móviles.
- Juegos infantiles y de ejercicios: Al menos uno de cada cinco elementos en cada sector de juegos infantiles y de ejercicios debe cumplir criterios de accesibilidad universal. En el caso de juegos infantiles, este elemento debe ser dinámico. Se preverán espacios libres de obstáculos de 1,50 m de diámetro mínimo junto a estos elementos.
- Parques y jardines: Se dispondrá de información para la orientación y localización de accesos, instalaciones, actividades y servicios.
- Playas: En los itinerarios peatonales accesibles colindantes con tramos urbanos de playas, se proporcionará información sobre accesos, instalaciones, actividades y servicios.
Diseño de parques inclusivos
Soluciones para Salvar Desniveles y Mejorar la Seguridad
Para salvar el desnivel entre la acera y la calzada, se contemplan diversas soluciones. Una de ellas es la elevación de la calzada en el paso de peatones, incorporando señalización táctil para facilitar la seguridad de personas con discapacidad visual. Cuando exista una zona de aparcamiento colindante a la acera, o si las circunstancias lo permiten, se puede ampliar hacia la calzada sin sobrepasar el límite de dicha zona. El objetivo es minimizar las distancias de cruce y facilitar la visibilidad mutua entre peatones y vehículos.
Los pasos de peatones, definidos como los espacios sobre la calzada en los cruces entre itinerarios peatonales y vehiculares, deben ubicarse estratégicamente para minimizar riesgos y facilitar el cruce.
Las pendientes longitudinales máximas de los planos inclinados se establecen en un 10% para tramos de hasta 2,00 m y en un 8% para tramos de hasta 3,00 m, garantizando así la accesibilidad y seguridad en superficies con desnivel.
Cumplimiento Normativo y Excepciones
Si bien existe un marco normativo detallado para garantizar la accesibilidad universal, el análisis jurídico señala un cumplimiento parcial en algunas áreas. Esto se debe a la existencia de excepciones que pueden debilitar la protección de la accesibilidad. Por ejemplo, se exceptúan ciertas naves dedicadas al transporte de personas, vehículos considerados patrimonio cultural o histórico, y aquellos destinados a fines recreativos o turísticos.
En el ámbito de las comunicaciones, aunque se han introducido prohibiciones y obligaciones para las empresas, el reglamento contiene excepciones como la programación emitida en horarios de baja audiencia, programas en idiomas distintos del español, programas musicales, deportivos, dirigidos a niños menores de 4 años, o aquellos producidos con anterioridad a la entrada en vigor del reglamento. La normativa aplicable a internet y redes sociales aún presenta lagunas.
Es importante destacar que la aplicación de estas normas puede verse influenciada por condicionantes orográficos, histórico-artísticos, culturales o medioambientales. En estos casos, se pueden establecer excepciones razonables y justificadas, siempre respetando la normativa autonómica y local, y con la debida motivación.
tags: #rebaje #de #aceras #para #minusvalidos