La adaptación de baños para personas con movilidad reducida es fundamental para garantizar su autonomía y comodidad. En este sentido, el lavabo y su grifería juegan un papel crucial. El monomando para lavabo, especialmente aquel diseñado con características geriátricas, se presenta como una solución ideal para baños adaptados.
Altura y Medidas del Lavabo en Baños Adaptados
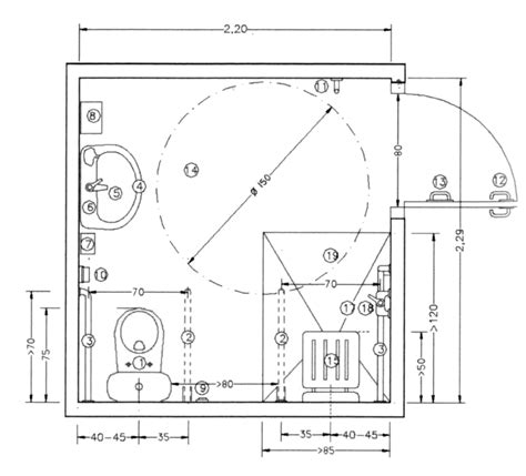
La altura reglamentaria de un lavabo para personas con movilidad reducida es de 80 cm, facilitando su uso tanto desde una silla de ruedas como estando de pie. Para que un lavabo sea accesible desde una silla de ruedas, debe colocarse a una distancia de entre 74 cm y 80 cm del suelo. Además, es imprescindible que el lavabo no tenga pedestal, disponiendo de un espacio libre inferior mínimo de 70 cm de altura y 50 cm de profundidad para permitir el acercamiento de la silla de ruedas. La forma del lavabo debe ser especial, resultando indispensable que sea suspendido para que la silla de ruedas no choque con el pie del lavabo. La forma del lavabo debe disponer de un frente cóncavo para que el usuario pueda acceder a él fácilmente.

Características del Monomando para Lavabo Adaptado
El grifo es un elemento clave en la accesibilidad del lavabo. Los grifos monomando, con sistema de palanca, son los más accesibles para las personas en silla de ruedas. Un ejemplo de este tipo de grifería es el monomando para lavabo con maneta geriátrica, diseñado para ofrecer mayor facilidad de uso.
Estas griferías suelen incorporar características adicionales para mejorar la experiencia del usuario:
- Maneta geriátrica: Facilita el manejo incluso con movilidad reducida en las manos.
- Limitador de caudal: Un limitador de flujo a 5 l/min ayuda a optimizar el consumo de agua y a evitar salpicaduras excesivas.
- Conexión flexible: Manguera de conexión flexible de 3/8” para una instalación sencilla.
- Instalación con válvula de desagüe: Permite la instalación con válvula de tipo "up-down".
Para mayor comodidad, es recomendable que el lavabo esté diseñado con apoyos para los codos, para el jabón y con un plano inclinado para evitar salpicaduras.

Normativa y Medidas Generales de Baños Adaptados
La normativa que rige los baños para discapacitados en España está recogida en el «Documento Básico de Seguridad de Utilización y Accesibilidad del Código Técnico de Edificación» (CTE DB-SUA) y el Real Decreto 173/2010. Estos documentos detallan las exigencias mínimas para aseos y vestuarios accesibles, así como el equipamiento básico que deben tener.
Medidas Generales de un Baño Adaptado
- Superficie del baño: Se recomienda un espacio de al menos 150 cm x 150 cm, ampliando a 180 cm x 180 cm para garantizar una maniobra cómoda de la silla de ruedas.
- Puertas: El ancho mínimo de la puerta debe ser de 80 cm para permitir el acceso con silla de ruedas.
- Barras de apoyo: Deben instalarse a unos 80/85 cm del suelo, a ambos lados del inodoro.
- Inodoro: La altura del asiento debe estar entre 45-50 cm, con barras de apoyo laterales.
- Espejo: Debe colocarse a una altura accesible tanto sentado como de pie, generalmente a una altura máxima de 90 cm.
- Ducha o bañera: Se aconsejan duchas a nivel del suelo con barras de apoyo y espacio suficiente para la transferencia desde la silla de ruedas. El espacio de ducha debe tener al menos 90 cm de ancho y 120 cm de fondo, ampliando a 180 cm x 180 cm si es un espacio exclusivo de ducha.

Obligatoriedad de Baños Adaptados en Locales Públicos
La ley obliga a tener baños adaptados para minusválidos en edificios y locales públicos como bares, restaurantes, tiendas, etc. Esta obligación aplica a establecimientos nuevos o cuando se realicen reformas. Todos los locales con atención al público deben tener al menos un aseo público adaptado. Dependiendo de las dimensiones del local (normalmente a partir de los 100m²) se exigen al menos dos baños, siendo uno de ellos adaptado. Esta normativa también afecta a establecimientos que modifiquen su actividad o realicen reformas. Los locales comerciales en centros comerciales que disponen de aseos adaptados están exentos de esta obligación individual.
Características Adicionales de los Baños Adaptados
Además de cumplir con la normativa de instalaciones sanitarias adaptadas y las alturas adecuadas, los aseos adaptados deben garantizar:
- Accesibilidad total en silla de ruedas.
- Colocación de barras de apoyo en los puntos indicados.
- Espacio adicional para maniobrar la silla sin problemas.
- Suelo preferiblemente antideslizante para evitar caídas.
- Grifos tipo alcachofa de ducha para facilitar tareas de higiene.
- Posibilidad de lavabos inclinables mediante sistema neumático en algunos casos.
Se recomienda consultar siempre con las autoridades locales la normativa aplicable y contactar con un profesional para adaptar el baño según las necesidades específicas.
Baño seguro para toda la familia | Seguridad Alta
tags: #monomando #lavamanos #minusvalidos