El diseño de baños para personas con discapacidad, también conocidos como baños adaptados o para minusválidos, requiere una cuidadosa consideración de las normativas y especificaciones técnicas para garantizar la accesibilidad, funcionalidad y seguridad. Estos espacios deben permitir una movilidad fluida y cómoda para personas que utilizan sillas de ruedas u otros dispositivos de asistencia, promoviendo así su autonomía e inclusión social.

Dimensiones Generales y Espacio de Maniobra
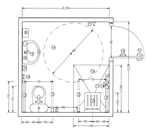
Las dimensiones mínimas de los baños adaptados están principalmente determinadas por el espacio necesario para el radio de giro de una silla de ruedas, que comúnmente se establece en un diámetro de 1,50 metros. Sin embargo, las normativas específicas de cada país pueden variar, considerando distintos tipos de sillas de ruedas y las necesidades de las personas con discapacidad.
En términos generales, las medidas internas de un baño adaptado deben superar los 1,50 m x 1,50 m para asegurar una accesibilidad segura y un espacio de maniobra adecuado. A continuación, se presentan ejemplos de requisitos mínimos según diferentes normativas:
- Normativa Española: Requiere una medida mínima de 1,80 m x 1,90 m.
- Normativa Chilena: Exige una superficie mínima de 1,60 m x 2,40 m.
- Normativa Mexicana: Establece una medida mínima de 1,70 m x 1,70 m.

Barras de Apoyo: Seguridad y Funcionalidad
Las barras de apoyo son elementos esenciales en los baños adaptados, diseñadas para proporcionar estabilidad y asistencia. Generalmente fabricadas en acero inoxidable, su ubicación y tipo (fijas o abatibles) dependen del espacio de transferencia disponible.
Las características comunes de estas barras incluyen:
- Sección: Circular, con un diámetro de 30 a 40 mm.
- Resistencia: Deben ser capaces de soportar el peso promedio de una persona y estar firmemente fijadas al muro para garantizar la estabilidad.
- Instalación: Separadas del paramento entre 45 y 55 mm. Las barras horizontales suelen tener una longitud mínima de 70 cm y se sitúan a una altura de 70-75 cm. Las barras en la zona de transferencia deben ser abatibles.
- Diferenciación Cromática: Deben distinguirse visualmente de los demás elementos del sanitario para facilitar su localización.
En duchas, las barras pueden colocarse de forma perimetral en al menos dos paredes que formen esquina, complementadas por una barra vertical. Las barras de apoyo deben ser antideslizantes y soportar una fuerza de al menos 1 kN (100 kg) en cualquier dirección.

Puertas de Acceso
La puerta de acceso a un baño adaptado debe garantizar un paso amplio y seguro:
- Ancho Total Mínimo: 90 cm.
- Ancho Libre Mínimo: 85 cm.
En cuanto al tipo de apertura, se prefieren:
- Puertas Batientes: Deben abrir hacia el exterior para evitar obstrucciones en caso de caídas dentro del baño.
- Puertas Correderas: Son una excelente opción para optimizar el espacio y facilitar el acceso.
La manija de la puerta debe estar situada a una altura entre 0,80 m y 1,20 m, ser de tipo presión o palanca y operable con una sola mano. El esfuerzo necesario para abrir la puerta no debe superar los 50 N (5 kg).
Normativas Específicas por País
Las normativas establecen requisitos detallados para cada elemento del baño adaptado. A continuación, se resumen algunos puntos clave:
Normativa Española (CTE DB-SUA)
El Código Técnico de la Edificación (CTE), en su Documento Básico de Seguridad de Utilización y Accesibilidad (DB-SUA), define las exigencias para aseos accesibles.
Lavabo
- Espacio Libre Inferior: Mínimo de 70 cm (altura) x 50 cm (profundidad) sin pedestal.
- Altura Superior: ≤ 85 cm.
- Forma: Suspendido, con frente cóncavo para facilitar el acceso de la silla de ruedas. Se recomiendan apoyos para codos y un plano inclinado.
- Grifería: Monomando con sistema de palanca o sensor.
Inodoro
- Espacio de Transferencia Lateral: Anchura ≥ 80 cm y fondo ≥ 75 cm hasta el borde frontal. En uso público, se requiere espacio a ambos lados.
- Altura del Asiento: Entre 45 y 50 cm.
- Barras de Apoyo: Una horizontal a cada lado (separadas 65-70 cm) y/o una vertical. Las del lado de transferencia deben ser abatibles.
Ducha
- Espacio de Transferencia Lateral: Anchura ≥ 80 cm al lado del asiento.
- Suelo: Enrasado con pendiente de evacuación ≤ 2%.
- Asiento de Apoyo: Abatible, con respaldo, de 40x40 cm y a una altura de 45-50 cm.
Otros Elementos
- Espejo: Borde inferior ≤ 0,90 m o orientable.
- Mecanismos y Accesorios: Altura de uso entre 0,70 m - 1,20 m.
- Suelo: Antideslizante.
- Puertas: Apertura hacia el exterior o correderas.

Normativa Chilena (OGUC)
La Ordenanza General de Urbanismo y Construcciones (OGUC), modificada por la Ley N° 20.422, establece los requisitos de accesibilidad universal.
Dimensiones y Giro
- Superficie que permita giros de 360° de una silla de ruedas (diámetro de 1,50 m).
- El área bajo el lavamanos puede incluirse en este diámetro, siempre que no haya pedestal.
Puerta
- Vano mínimo de 0,90 m, ancho libre mínimo de 0,80 m.
- Apertura preferentemente hacia el exterior; si es interior, el barrido no debe interferir con el radio de giro.
- Se permite puerta corredera en casos justificados.
Artefactos Sanitarios
- Lavamanos: Altura de 0,80 m, espacio libre inferior de 0,70 m. Grifería de palanca, presión o sensor.
- Inodoro: Espacio de transferencia lateral de al menos 0,80 m x 1,20 m. Altura del asiento de 0,46 m a 0,48 m. Barras de apoyo (recta fija y/o abatible) con diámetro de 3,5 cm y longitud mínima de 0,60 m, a 0,75 m de altura.
- Espejo: Altura máxima de 3 cm del punto más alto de la cubierta o lavamanos.
Accesorios
- Instalados a una altura máxima de 1,20 m y no deben obstaculizar la circulación.
- Botón de emergencia sobre 0,40 m de altura.

Normativa Mexicana (NTC-PA)
El Manual de Normas Técnicas Complementarias de Accesibilidad, parte del Reglamento de Construcciones para la Ciudad de México, detalla las especificaciones.
Espacio para Inodoro
- Dimensiones del espacio para escusado: 1,70 m x 1,50 m.
- Altura del asiento: Entre 0,45 m y 0,50 m.
- Área mínima de transferencia lateral: 0,90 m de ancho por 1,50 m de fondo.
- Barra de apoyo horizontal: Longitud mínima de 0,60 m, a 0,80 m de altura.
Área de Lavabos
- Lavabo para uso desde silla de ruedas con las siguientes características:
- Espacio de Maniobra: Mínimo de 1,20 m frente al lavabo.
- Profundidad del Lavabo: Máxima de 40 cm desde el borde frontal hasta la grifería.
- Altura del Lavabo: Aproximadamente 80 cm, empotrado a la pared.
- Espejo: Inclinación del 10% hacia abajo, a 1 m de altura.
- Grifería: Mandos de palanca o aleta.

Otros Aspectos Fundamentales
Además de las dimensiones y la ubicación de los artefactos sanitarios, otros factores son cruciales para la accesibilidad:
- Suelo Antideslizante: Fundamental para prevenir caídas, tanto en seco como en mojado.
- Iluminación: Adecuada y sin sombras para una correcta visibilidad.
- Espacio de Aproximación: Suficiente para maniobrar sillas de ruedas o andadores.
- Accesorios: Jaboneras, toalleros, secadores de manos, etc., deben estar a una altura accesible (generalmente entre 0,70 m y 1,20 m) y no obstaculizar el paso.
- Botones de Emergencia: Deben ser fácilmente accesibles.
- Mobiliario: Evitar muebles altos o empotrados que puedan ser barreras.
Trasferencias. De la silla al inodoro (Hospital Aita Menni)
La adaptación de baños para personas con discapacidad no es solo una cuestión de cumplimiento normativo, sino una inversión en comodidad, autosuficiencia, dignidad e inclusión social. La colaboración con profesionales especializados es recomendable para asegurar que todos los requisitos legales y las necesidades específicas del usuario sean cubiertos de manera óptima.
tags: #lavamanos #minusvalido #limatco