La accesibilidad universal es un concepto fundamental en el desarrollo urbano y la provisión de servicios, definido en normativas como la Ordenanza General de Urbanismo y Construcciones (O.G.U.C.) en Chile. Su objetivo es garantizar que todas las personas, independientemente de sus capacidades, puedan desenvolverse en el entorno de manera autónoma y segura.
Principios de Accesibilidad en la Infraestructura Urbana
La O.G.U.C., en su Artículo 2.2.8, establece directrices claras para la creación de rutas accesibles en las veredas. Estas rutas deben ser continuas, libres de obstáculos y tener un ancho mínimo de 1,20 metros, o el ancho de la vereda según la categoría de la vía, según se detalla en la tabla del Artículo 3.2.5.

San Miguel: Un Modelo de Conectividad y Demanda de Arriendos
En Santiago, la conectividad se ha convertido en un factor determinante en el valor y la demanda de los arriendos. La comuna de San Miguel ejemplifica cómo la infraestructura y el transporte público pueden revitalizar un área urbana.
1. Una Comuna Conectada por el Metro
San Miguel se beneficia enormemente de la Línea 2 del Metro, que atraviesa la comuna de norte a sur, permitiendo un acceso rápido al centro de la ciudad en menos de 15 minutos. Estaciones como Lo Vial, San Miguel y El Llano la posicionan como un punto estratégico para quienes se desplazan diariamente por motivos de trabajo o estudio. Esta conectividad ha impulsado la demanda de arriendos, facilitando un estilo de vida urbano sin depender exclusivamente del automóvil.

2. Acceso Rápido a Autopistas Urbanas
La ubicación de San Miguel junto a la Autopista Central y Gran Avenida ofrece una conectividad vial excepcional, facilitando el desplazamiento hacia el centro, sur y poniente de la capital. Esta ventaja es crucial para quienes utilizan vehículo propio o trabajan en zonas industriales, reduciendo los tiempos de traslado y ofreciendo mayor flexibilidad horaria.
3. Cómo la Conectividad Impulsa la Demanda de Arriendos
La accesibilidad ha sido un motor directo del desarrollo inmobiliario en San Miguel. Cada mejora en la red de transporte o vialidad incrementa la plusvalía y el interés por vivir en la comuna. Los efectos más notables incluyen:
- Mayor demanda de arriendo debido a la conveniencia geográfica.
- Crecimiento de comercios y servicios locales en las cercanías del Metro.
- Menor tasa de vacancia en departamentos administrados profesionalmente.
- Incremento del valor de los activos residenciales a largo plazo.
En resumen, la conectividad no solo mejora la calidad de vida de los residentes, sino que también asegura la estabilidad y el atractivo del mercado de arriendos.
4. San Miguel: Comuna Emergente con Visión Metropolitana
San Miguel ha sabido integrar su desarrollo urbano con un enfoque metropolitano, aprovechando su conectividad sin sacrificar su carácter residencial. La expansión del Metro, junto con mejoras viales y nuevos polos comerciales, ha consolidado su posición como una de las comunas emergentes más sólidas del Gran Santiago. Esto ha atraído a jóvenes profesionales, familias y estudiantes que valoran la ubicación, los precios accesibles y la facilidad de movilidad.
5. Vida Urbana Eficiente y con Sentido
La conectividad en San Miguel se traduce en una rutina diaria más simple y eficiente. La posibilidad de desplazarse rápidamente al trabajo, a estudiar, realizar compras o disfrutar de actividades recreativas, sin depender del tráfico o recorrer largas distancias, es un factor clave en la popularidad de esta comuna para quienes buscan un equilibrio entre movilidad, costo y bienestar.
Video Corporativo San Miguel®
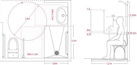
Accesibilidad en Infraestructura Hospitalaria: Baños Móviles Accesibles
En el ámbito de la salud, la adaptación de las instalaciones para garantizar la inclusión de personas con discapacidad es un desafío constante. El arriendo de baños permanentes se presenta como una solución eficiente para hospitales, evitando altos costos de remodelación y permitiendo la continuidad de las actividades médicas.
¿Qué son los Baños Móviles Accesibles?
Los baños móviles accesibles son unidades sanitarias portátiles diseñadas específicamente para personas con discapacidad. Integran características y adaptaciones que aseguran su uso seguro, cómodo e independiente.
Características de los Baños Móviles Accesibles:
- Entrada accesible: Cuentan con rampas y barras de apoyo estratégicamente ubicadas para facilitar el acceso a usuarios en sillas de ruedas u otros dispositivos de movilidad.
- Espacio amplio: Su diseño interior permite el movimiento de sillas de ruedas, equipos ortopédicos y la asistencia de cuidadores.
- Alturas reglamentarias: Los inodoros y lavamanos se instalan a alturas adecuadas para personas con discapacidad.
- Sensores de iluminación y agua: Los sistemas de iluminación y grifería con sensores activados por movimiento facilitan su uso.
- Botón de pánico: Permite a los usuarios solicitar ayuda en caso de emergencia.
- Piso antideslizante: Reduce el riesgo de caídas.

¿Por Qué los Hospitales Solicitan Baños Móviles Accesibles?
Los baños accesibles son cada vez más solicitados en hospitales por diversas razones:
Inclusión para Todos los Pacientes
Garantizar la accesibilidad a los servicios básicos, como el uso del baño, es un derecho fundamental. Los hospitales que implementan baños accesibles demuestran su compromiso con la inclusión, la dignificación de las personas con diferentes capacidades y la igualdad en la atención.
Cumplimiento con Normativas
Los hospitales, tanto públicos como privados, deben cumplir con normativas de accesibilidad para personas con discapacidad. En Chile, el Decreto Supremo N.º 50 del Ministerio de Vivienda y Urbanismo establece requisitos específicos para el diseño accesible de baños. El arriendo de baños a largo plazo permite cumplir con estas normativas, incluso en instalaciones originales que no las contemplan.
Adaptabilidad
El arriendo de baños accesibles a largo plazo ofrece flexibilidad para adaptarse a las variaciones en la demanda, especialmente durante emergencias de salud pública, garantizando el acceso equitativo a instalaciones sanitarias.
Mejor Experiencia para los Pacientes
Las unidades de baños accesibles son espaciosas, bien decoradas y equipadas, mejorando significativamente la experiencia del paciente, especialmente en hospitales privados donde la recomendación y la imagen positiva son cruciales.
Apoyo para el Personal Sanitario
Estos baños facilitan el trabajo del personal de enfermería al reducir el esfuerzo, las maniobras y el tiempo requerido para asistir a pacientes con movilidad reducida, además de evitar la congestión y los tiempos de espera.
Buena Relación Costo-Beneficio
El arriendo de baños accesibles a largo plazo suele ser más rentable que la construcción o remodelación de instalaciones permanentes. Los costos de mantenimiento son menores, y los proveedores suelen incluir servicios de mantenimiento y gestión de residuos.
Empresas como Baños Móviles de Lujo ofrecen experiencia en el arriendo de baños para hospitales, como el modelo T6 accesible instalado en el Hospital Barros Luco.
Propuesta de Política de Arriendo Asequible para Abordar el Déficit Habitacional
El grave déficit habitacional en Chile requiere una atención urgente. La política actual, centrada en la propiedad, presenta limitaciones como la presión al alza sobre el valor del suelo y la profundización de la segregación residencial. Como respuesta, se propone una política de arriendo asequible que diversifique las opciones habitacionales.
Mecanismos de Financiamiento y Estándares de Calidad
Esta política implementaría mecanismos de financiamiento exclusivos y permanentes para la oferta de arriendo, ya sea mediante construcción nueva o la readaptación de stock existente. Las viviendas contarían con estándares de calidad que aseguren bajos costos de mantenimiento para los arrendatarios, acceso a sectores consolidados de la ciudad y diversas tipologías para atender la diversidad de beneficiarios.
Acceso Rápido y Permanencia para Usuarios
La política garantizaría el acceso rápido a la vivienda independientemente del nivel de ingresos, proponiendo cobros diferenciados que no superen el 30% del presupuesto familiar. Además, se aseguraría la permanencia de los usuarios por tiempos mayores a los actuales, evitando la privación de vivienda ante situaciones imprevistas y justificadas, estableciendo un "costo cero como piso de bienestar y seguridad de la tenencia".
Diversificación de Actores Involucrados
Para su implementación exitosa, se requiere la participación de diversos actores:
- El Estado: A nivel central y local, financiará, desarrollará y administrará proyectos, además de supervisar y regular el sistema.
- El sector sin fines de lucro: Desempeñará un rol clave en el desarrollo y administración de viviendas de arriendo, incentivado por garantías.
- Los privados: Colaborarán en el acceso al crédito, la construcción y la administración de proyectos, bajo un marco normativo que evite el lucro en viviendas con financiamiento público.
El próximo gobierno enfrentará la responsabilidad de abordar la crisis habitacional. La ampliación de opciones, incluyendo el refuerzo del arriendo asequible, es una vía para evitar que miles de hogares continúen esperando acceso a una vivienda digna.

Servicios de Arriendo de Plataformas Elevadoras y Equipos Industriales
En la Región del Biobío, empresas como Man Lift ofrecen servicios de arriendo, venta y mantenimiento de plataformas elevadoras (alzahombres) y otros equipos industriales.
Equipos Disponibles para Arriendo:
- Mesas de Tijera: Ideales para espacios de trabajo críticos, tanto en interiores como exteriores, disponibles en versiones eléctricas y diésel.
- Manipuladores Telescópicos: Equipos versátiles para carga, descarga, movimiento y colocación de materiales, optimizando la productividad en entornos con requerimientos de gran alcance.
- Manipuladores de Vidrios y Láminas: Diseñados para la instalación de cristales de gran formato y muros cortina con alta seguridad y precisión.
Cursos y Servicios Adicionales
Man Lift también ofrece cursos de operador IPAF para el manejo de plataformas elevadoras y servicios de traslado de equipos. Sus modalidades de arriendo flexibles (diario, semanal, mensual) y un servicio técnico especializado garantizan la continuidad operacional de sus clientes.

tags: #infraestructura #en #arriendo #con #accesibilidad